-
تخصصی ترین مطالب، کلیپ ها و فیلم های آموزشی، راهکارها و رفع مشکلات صنعت قیر، آسفالت و عایق را در کانال تخصصی ما دریافت کنید
https://www.instagram.com/fgp_engineerng_company - متاسفانه در صنعت قیر و عایق در ایران کمتر شرکتی پیدا می شود که در ساخت و راه اندازی واحد خود , به داشتن مدارک واسناد فنی و مهندسی توجه کند . این واحد های تولیدی , هیچ گاه نمی توانند در بازاررقابت , شرکت کنند چرا که این واحد ها تنها راه برای رقابت و ماندگاری در بازار را تولید محصولی کم کیفیت و ارزان تر با تکنیک استفاده از مواد اولیه بی کیفیت و روش های تولید نا درست می دانند تا بتوانند محصولی ارزان تر و قابل رقابت در بازار داشته باشند . باید توجه داشت که بهترین روش برای رقابت و پایین آوردن قیمت تمام شده , استفاده از دانش فنی و روش های تولید صحیح در پایین آوردن هزینه تولید می باشد که با این روش می توان محصولی با کیفیت و ارزان عرضه کرد.
- شرکت فنی مهندسی فناور گستر پیمان مفتخر است که در تمامی مراحل ساخت و راه اندازی پروژهای خود مدارک لازم را با استفاده از نرم افزار های تخصصی این صنعت همچون PDMS و SOLIDWORKS و AUTOCAD و TANKS و ANSYS وAuto cad P&ID و Auto cad civil 3D land و csi safe و ... بعد از 30 روزکاری از زمان عقد قرارداد در موعد مقرر وبر حسب پیشرفت پروژه دراختیار سرمایه گذار خود قرار می دهد :

- 1- مشخصات خوراک واحد ، روش های استاندارد اندازه گیری مشخصات، معرفی استانداردهای مربوطه.
- 2- مشخصات محصول، روش های استاندارد اندازه گیری مشخصات، معرفی استانداردهای مربوطه.
- 3- شرح فرایند، فرمولاسیون، پارامترهای کنترل فرایند، Operating Manual
- 4- نقشه PFD
- نمونه یک نقشه PFD

- 5- نقشه های اجرایی در دیسیپلین های مختلف بر حسب نیاز
- 6- نقشه کامل مخازن (Data Sheet)
- نمونه یک نقشه (Data Sheet)


- 7- لیست و مقدار و مشخصات آب و برق و سوخت (Utility) مورد نیاز واحد محصول
- 8- پرسنل مورد نیاز برای بهره برداری از خط تولید
- 9- نکات ایمنی فرایند و ایمنی محیط کار و پرسنل برای تولید محصول
- 10- فیلم انیمیشن پروژه (Animation Project)
- 11- نقشه فونداسیون (Civil)
- نمونه یک نقشه (Civil)

- Data Base List-12
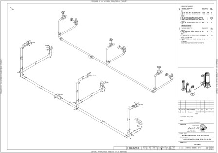
- 13- نقشه های پایپینگ ( لوله کشی ) Drafts
- نمونه یک نقشه پایپینگ ( لوله کشی )Drafts

- 14- نقشه های پایپینگ ( لوله کشی ) ISO Drafts
- نمونه یک نقشهپایپینگ ( لوله کشی )ISO Drafts

- 15- نقشه های Final Draftsپایپینگ ( لوله کشی )
- نمونه یک نقشه پایپینگ ( لوله کشی )Final Drafts

- 16- لیست MTO
- 17- نقشه های جانمایی مخازن و تجهیزات PLOT PLAN
- نمونه یک نقشه PLOT PLAN

- 18- نقشه های CUT & FILL Drawing
- نمونه یک نقشه CUT & FILL Drawing


شرکت فني مهندسي فناور گستر پيمان مفتخر است که در تمامي مراحل ساخت ، از مدارک مهندسي لازم كه با استفاده از نرم افزار هاي تخصصي توليد كرده ، استفاده مي نمايد.
ارتباط با ما
|
ایران - تهران - فلكه سوم تهران پارس - پلاك 547 - طبقه 4 - واحد 7 |
|
| support@fgpco.ir | |
|
( ساعت پاسخگویی : همه روزه از8 الی 17 به جز ایام تعطیل ) تلفن : 77730245-77730239-77730238(21-98+) |
|
|
همراه : 09128090057- 09122757394 تنها در ساعات کاری تعیین شده پاسخگوی شما هستیم |
تخصصی ترین مطالب، کلیپ ها و فیلم های آموزشی، راهکارها و رفع مشکلات صنعت قیر، آسفالت و عایق را در کانال تخصصی ما دریافت کنید
https://telegram.me/FGPco
( شما می توانید برای مشاهده هر یک از موضوعات زیر روی آن کلیک کنید )
001 طراحی ، مشاوره و راه اندازی کارخانجات نسل سوم تولید انواع قیر
002 مشاوره مهندسی در زمینه انطباق با استانداردهای مرکز تحقیقات وزارت راه و شهرسازی
003 طرح توجیهی فنی ومالی واقتصادی تولید انواع قیربا نرم افزار کامفار
004 مشاوره در رفع مشکلات آلایندگی و زيست محيطي مطابق با استانداردهای سازمان محیط زیست
005 فروش كتاب هاي تخصصي '' از قير تا ايزوگام ''
006 مشاوره و طراحی و ساخت مبدل حرارتی نسل سوم ( exchanger )مختص کارخانجات قیر
007 بازدید از پروژه های در دست احداث
008 بازدید از مدارک استانداردهای اخذ شده
009 آگاهی از اهمیت مدارک مورد نیاز ساخت یک پروژه
011 ثبت نام دوره آموزش متخصص مدلسازی در پروژه های صنعتی
012 اخبار صنعت قیر و فرآورده های نفتی
013 اطلاعیه عرضه قیر و مشتقات نفتی در تالار بورس ایران
014 گزارش از حضور در نمایشگاه بین المللی
015 مشاور و طراحی، برنامه نویسی و اجرای اتاق کنترل
016 مشاوره در پالایش قيرهای طبيعي یا معدنی(Asphalts or Natural Bitumens Native)
017 مشاوره در امور عايق های رطوبتی پیش ساخته
018 مشاوره در تولید انواع قیرهای PG یا Performance Grade
019 مشاوره در تولید انواع قیرهای ویسکوزی VG یا Viscosity Grade
020 مشاوره در تولید انواع قیرهای پلیمری
021 طراحی و ساخت و راه اندازی ماشين آلات خط تولید عایق رطوبتی
022 مشاوره، طراحی و ساخت انواع ميكسر
023 مشاور در سیستم های اطفای حریق
024 مشاوره تخصصی در زمینه آسفات
026 آشنایی با انواع سيستم پالايش
027 آشنایی با تاریخچه صنعت ایزوگام ( عایق رطوبتی پیش ساخته )
028 تهیه و پشتیبانی و تعمیر انواع کمپرسور
029 تهیه و پشتیبانی کلیه لوازم مرتبط باصنایع نفت وگاز
030 مشاوره و تهیه و پشتیبانی خشک کن هوای کمپرسور ( Air Dryer )
031 مشاور و طراحی و ساخت بويلر حرارتي ، تصفيه گازوئيل ، تصفيه تينر و ...
033 خدمات و تهیه لوازم و آزمايشگاهي





